Oil Supply Systems
and Fire Safe Oil Supply Systems




OIL SUPPLY SYSTEMS AND
FIRE SAFE OIL SUPPLY SYSTEMS

5 GALLON 15 GALLON 30 GALLON 55 GALLON
Model Number
Tank Size Tank Only Tank with 36" Stand Tank with 56" Stand 36" Stand Only 56" Stand Only
5 Gallon
15 Gallon
30 Gallon
55 Gallon
5G
15G
30G
55G
5G-36
15G-36
30G-36
55G-36
NA*
15G - 36
30G - 36
55G - 36
36S - 5
36S - 15
36S - 30
36S - 55
NA*
56/S - 15
56/S - 30
56/S - 55
Add to Model Number
For Fire Safe Valves For Condensate Drain
NA*
-FS
-FS
-FS
NA*
-CD
-CD
-CD

* Not Available

Condensate Drain

A unique outlet fitting which forms a sediment trap is optional on all 15, 30, and 55 gallon oil supply tanks. It is fitted with a drain cock for removing sediment without the loss of oil

Fire Safe Valve

A Fire Safe Oil Supply Tank has a thermally actuated outlet valve which closes in the event of fire near the oil tank. This prevents oil escaping into the fire. The valve closes off both the tank outlet and gauge tube. The valve body is electroplated steel. Its plunger assembly and spring are stainless steel. The melting point of the fuseable link is 160-190 º F (other temperatures on special order). Fire Safe oil tanks are available with or without condensate drain. They are supplied with a 1/2" brass outlet valve.

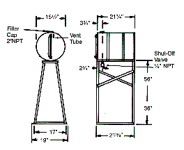
OUTLINE DIMENSIONS

5 Gallon Tank And Stand 15 Gallon Tank And Stand
30 Gallon Tank And Stand 55 Gallon Tank And Stand

Gauge Glass Repair Kits

Tank Size Standard Tank Fire Safe Tank
5 Gallon
15 Gallon
30 Gallon
55 Gallon
PTA-3872K
PT A847K
PT A848K
PT A849K
Not Available
PT A2105K
PT A2106K
PT A2107K